电脑桌面
添加能源双碳资料库到电脑桌面
安装后可以在桌面快捷访问

电缆沟敷设技术VIP免费

电缆沟敷设技术电缆沟敷设技术电缆沟敷设技术电缆沟敷设技术电缆沟敷设技术
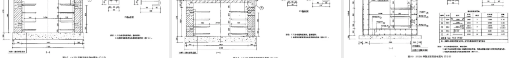
电缆沟敷设方案---- 电缆沟敷设技术这一章、你要学会什么?• 1 、电缆敷设中,应该增加哪些附属设施?• 2 、现浇混凝土电缆沟施工主意事项有哪些?• 3 、砖砌电缆沟施工要点?• 4 、电缆支架有哪两种形式?• 5 、角钢支架的加工需要注意什么?8.1 概述 电缆沟敷设方案( C 模块)按沟体结构及电缆支架多少分为 2 个子模块,级别为 C-1 (砖砌电缆沟), C-2 (钢筋混凝土电缆沟)。 电缆沟敷设方式与电缆排管、电缆工作井等敷设进行相互配合使用,适用于变电站出线、小区道路、电缆较多、道路弯曲或地坪高程变化较大的地段。 电缆沟敷设的优点是检修、更换电缆较为方便,灵活多样,转弯方便,可根据地坪高程变化调整电缆敷设高程;其缺点是施工检查及更换电缆时需搬用大量盖板,施工时外物不慎落入沟时易将电缆碰伤。 地下水位太高的地区及水中含有腐蚀性介质的场所不宜采用电缆沟敷没,否则沟内长年积水,不便维护,而且腐蚀性介质会损坏电缆。 电缆沟的形式有两种,一般场所可采用普通电缆沟。在有比空气重的爆炸介质和火灾危险场所可采用充砂电缆沟。充砂电缆沟内不用安装电缆支架。8.2 模块适用范围 C 模块适用于道路、厂区、建筑物内电缆出线集中且不需采用电缆隧道的区域;城镇人行便道或绿地等区域。在盖板不可开启区域,不应选择电缆沟形式。 C-1 子模块:适用于外部荷载较小,车辆不能通行的人行道、绿化带等区域。 C-2 子模块:适用于外部荷载较大,可能有汽 -15(单轴荷载 100kN )以下载重车通行的区域。8.3 模块方案说明8.3.1 C-1 模块 C-1 模块分为八个断面,各断面技术参数如下表:C-1 模块技术参数一览表序号沟体结构地面活荷载( kN/ ㎡)支架层数电缆根数支架长度( mm )模块编号1砖砌≤10单侧 3 层6350C-1-12砖砌≤10单侧 3 层9500C-1-23砖砌≤10单侧 4 层8350C-1-34砖砌≤10单侧 4 层12500C-1-45砖砌≤10双侧 3 层12350C-1-56砖砌≤10双侧 3 层18500C-1-67砖砌≤10双侧 4 层16350C-1-78砖砌≤10双侧 4 层24500C-1-8注:电缆沟在盖板开启时沟、井侧壁应做好支撑防护措施,以防沟壁倒塌。8.3.2 C-2 模块• C-2 模块分为 6 个断面,各断面技术参数见下表:C-2 模块技术参数一览表序号沟体结构荷载通车轴标准轴载( kN )支架层数电缆根数支架长度( mm )模块编号1钢筋混凝土≤100单侧 3 层9500C-2-12钢筋混凝土≤100单侧 4 层12500C-2-23钢...

1、当您下载文档后,您只拥有了使用权限,并不意味着购买了版权,文档只能用于自身使用,不得用于其他商业用途(如 [转卖]进行直接盈利或[编辑后售卖]进行间接盈利)。
2、本站所有内容均由合作方或网友上传,本站不对文档的完整性、权威性及其观点立场正确性做任何保证或承诺!文档内容仅供研究参考,付费前请自行鉴别。
3、如文档内容存在违规,或者侵犯商业秘密、侵犯著作权等,请点击“违规举报”。

声明:本站为非经营盈利性个人网站(C2C模式),即所有资料为用户上传并直接被用户下载,本站只是中间服务平台。所有资料仅供个人学习使用,请勿他用。本站所获取的赞助将用于本站服务器及运营成本,感谢大家的支持。我们倡导共建、共创、共享的模式分享知识! 本站仅提供信息存储空间,仅对用户上传内容的表现方式做保护处理,对内容本身不做任何修改或编辑。若资料或所含内容侵犯了您的版权或隐私等任何权益,请立即通知联系客服或在资料页面直接举报反馈,我们会及时妥善处理。

客服微信:pv3515客服QQ:2090330665客服邮箱:2090330665@qq.com

若无法下载、资料侵权等问题联系客服立即处理!微信:pv3515

电缆沟敷设技术

确认删除?
回到顶部
微信客服
  • 管理员微信
QQ客服
  • QQ客服点击这里给我发消息
客服邮箱